Kategorien
Altendorf WA 6
Altendorf WA 6 Formatkreissäge
EINE VOLL AUSGESTATTETE ALTENDORF
Was tun, wenn man wenig Raum hat, dazu ein begrenztes Budget, und trotzdem nicht auf Qualität verzichten will? Wenn diese Ansprüche auf eine Formatkreissäge zutreffen sollen, gibt Altendorf die Antwort: Altendorf WA 6.
Klein in der Abmessung, besticht die WA 6 genau so wie alle anderen Maschinen aus dem Hause Altendorf durch hochwertigste Verarbeitung, eine innovative Ausstattung und obendrein durch einen unschlagbaren Preis. Für Anfänger wie Profis geeignet, macht die Altendorf WA 6 die Arbeit an der Formatkreissäge zu einer Ihrer leichtesten Übungen.
Machen Sie sich jetzt mit der Altendorf WA 6 Formatkreissäge vertraut und nehmen Sie für Ihre individuelle Anfrage Kontakt zu uns auf.
ALTENDORF WA 6
Die WA 6 ist die kleinste Altendorf Formatkreissäge, die es gibt. Und trotz ihrer kleineren Abmessungen besticht sie durch große Leistungen: Mit ihrer starken Ausstattung trumpft sie selbst auf kleinstem Raum groß auf. Hervorragend sind die Schnittqualität und die Flexibilität im täglichen Einsatz. Und ebenso hervorragend ist der Preis.
Grundausstattung

Doppelrollwagen
Der bewährte Altendorf Doppelrollwagen mit Stahlführung. Die WA 6 ist mit 1600, 2000 oder 2600 mm Doppelrollwagen lieferbar.

Parallelanschlag
Der Parallelanschlag, präzise und leichtgängig. Schnittbreite: 1000 mm.

Winkel-Gehrungsanschlag
Für präzises Schneiden von Winkeln und Gehrungen in einer Funktion. Ablängbereich: 105 – 2600 mm. Schwenkwinkel stufenlos einstellbar von 0 – 49°.

Manuelle Schwenkverstellung
Manuell per Handrad, Schwenkwinkel wird über Skala angezeigt. Von 0 – 45°.

Manuelle Höhenverstellung
Manuell per Handrad.

Vorritzer
Separater Vorritzermotor mit 0,37 kW und Ein/Aus-Schalter.

Schutzhaube
Schutzhaube für max. Sägeblattdurchmesser von 315 mm (CE-Ausführung) bzw. 350 mm (Non-CE-Ausführung), am Spaltkeil befestigt, mit Absaugschlauch oberhalb des Hauptsägeblatts. Max. Sägeblattüberstand 100 mm bzw. 117,5 mm.
Sägeaggregat
- Motorleistung: 4 kW (5,5 PS)
- Drehzahl: 4200 U/min.
Sonderausstattung

RAPIDO-Vorritzsystem
Der RAPIDO ist das professionelle Werkzeug für das Vorritzaggregat. Die Schnittbreite des Vorritzblattes kann ohne Demontage stufenlos präzise auf die Schnittbreite des Hauptsägeblattes eingestellt werden. Gegenüber herkömmlichen Vorritzsystemen sparen Sie bis zu 10 Minuten Einstellzeit, da das mühsame Montieren von zweigeteilten Vorritzblättern mit Distanzscheiben entfällt. Einstellbereich: 3 – 3,8 mm.

Doppelseitiger Gehrungsanschlag DUPLEX
Der DUPLEX erlaubt Winkelschnitte von 0 – 90° sehr schnell, genau und stufenlos. Bei einer Einstellung auf 45° kann die Gehrung beidseitig am Werkstück ohne weitere Verstellung geschnitten werden. Die Maßeinstellung erfolgt über Lupe / Maßskala. Ablängen bis 1350 mm.

Große Absaughaube (PSV)
Die PSV wird mit einer schmalen Haube für 90°-Schnitte und einer breiten Haube für Gehrungs-Schnitte geliefert. Sie decken sowohl das Haupt- als auch das Vorritzsägeblatt ab. Die Haube lässt sich auf die jeweilige Materialstärke stufenlos und selbsthemmend einstellen. Absauganschluss: 80 mm
Spezifikationen
Technische Daten
Doppelrollwagen-Schnittlängen
| Wagenlänge | mit oder ohne Vorritz-Sägeblatt |
| 1600 mm | 1500 mm |
| 2000 mm | 1900 mm |
| 2600 mm | 2500 mm |
Diese Schnittlängen beziehen sich auf mechanische Fahrwege, d. h. von Doppelrollwagen-Endanschlag zu Endanschlag.
Schnitthöhen
| Sägeblattdurchmesser in mm | 250 | 300 | 315 | 350* |
| Schnitthöhen bei 90° in mm | 0–67,5 | 0–92,5 | 0–100 | 0–117,5 |
| Schnitthöhen bei 45° in mm | 0–48 | 0–65,5 | 0–70,7 | 0–83 |
*Non-CE Ausführung
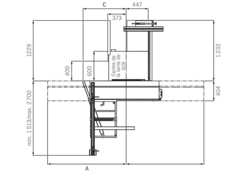
Platzbedarf
Diesen Raum braucht Ihre WA 6:
| A | Wagenlänge + 220 mm bei Doppelrollwagen 1600 und 2000 mm |
| Wagenlänge + 290 mm bei Doppelrollwagen 2600 mm | |
| B | Wagenlänge + 220 mm |
| C | 873 mm bei Doppelrollwagen 1600 mm und 2000 mm |
| 1273 mm bei Doppelrollwagen 2600 mm | |
| Maschinengewicht | 450 kg |
| Arbeitstischhöhe | 910 mm |

